




Terreno à venda, com 583.48m², no bairro Alphaville em Porto alegre
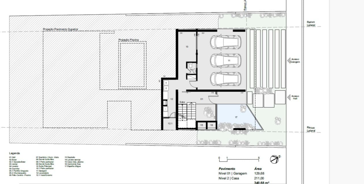
Excelente terreno de 584 m2 com vista panorâmica, infraestrutura completa de lazer e segurança, no condomínio Alphaville, em Porto Alegre. Localização privilegiada dentro do condomínio. Estudo planimétrico já realizado. Economia de tempo e investimento no início da obra. Projeto arquitetônico preliminar incluso - planta baixa de 340 m² de puro aproveitamento com ambientes integrados, modernos e funcionais. Ótima orientação solar e relevo favorável à construção. Tudo pensado para garantir conforto térmico, Iluminação natural e vista permanente. Incluso o estudo/anteprojeto. O mesmo não encontra-se aprovado. O condomínio Alphaville Porto Alegre é um dos mais completos da cidade, com infraestrutura de resort, sistema de segurança muito sofisticado, Clube completo com salões de festas, restaurante, academia completa, playground, piscinas adulto e infantil, raia de natação e piscina aquecida, quadra de padel coberta de última geração, quadra de tênis coberta e quadras de tênis descobertas, quadras de beach tênis e de vôlei de praia e futevôlei, pista de skate, bocha, áreas para caminhadas, trilhas no meio da reserva florestal e muito mais para você aproveitar ao máximo a tranquilidade e qualidade de vida de um verdadeiro resort.
INFRAESTRUTURA
AlphavilleAgendar visita
Escolha a data e aguarde a confirmação de nossa equipe.
Mídias

Localização
AlphavillePorto Alegre
TerraSul
R$ 440.000



